C2P
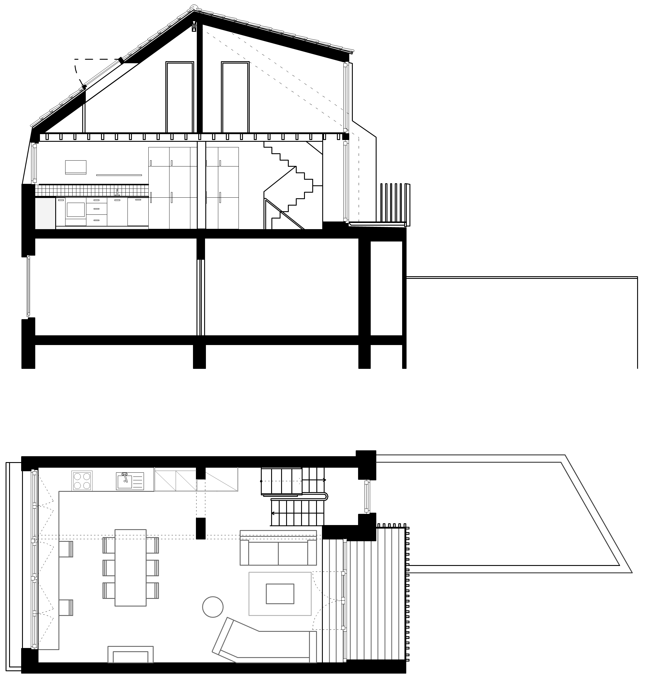
Duplex à Saint-Gilles.
+
Alice et Gautier rêvaient d’une terrasse à l’Ouest pour voir les couchers de soleil. Ce qui a été possible grâce à la surélévation du dernier niveau de cet immeuble bruxellois. Les travaux ont permis la création d’un duplexe lumineux avec des vues à chaque niveaux donnant sur le paysage de la ville.










